Строительство здания

Церковь – это живой организм. Здание – лишь инструмент, данный Богом, чтобы община могла собираться, учиться, радоваться и служить. Но история строительства здания в нашем случае связана напрямую со становлением общины. История строительства неидеальна в датах – ведь одновременно работало множество людей. Кто-то пришёл с валиком и краской, кто-то с советом, кто-то с деньгами. Никто не вел строгого учета вложенного труда: каждый делал то, что мог, и как мог. Но именно это единство и готовность служить сделали невозможное возможным - у нас повяилось собственное здание.

Хронология: шаг за шагом

8 июля 1997 года

На собрании решено: пора строить свой дом для верующих. Покупаем подвальное помещение на улице Приежу и участок земли в 8 соток. Пастор Иосиф Бондаренко пожертвовал на эти цели 1000 долларов. Для многих это было больше, чем строительство – это был первый шаг к мечте, которую все вместе вынашивали годами.

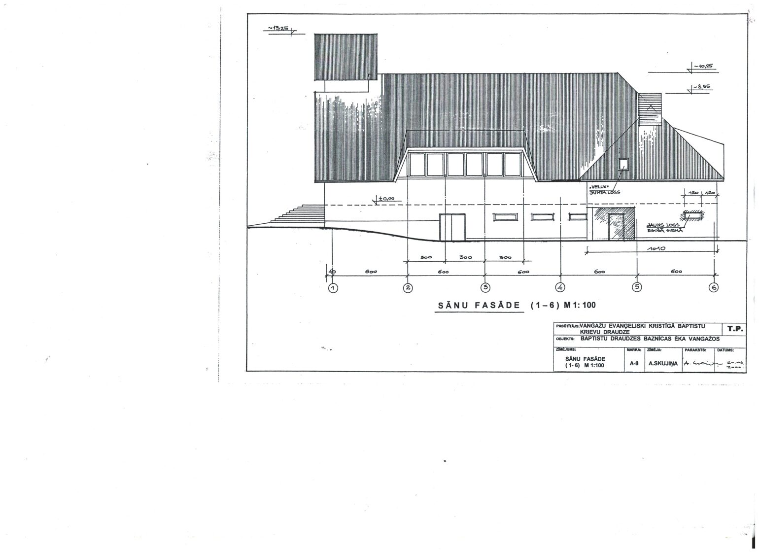
Архитектор проекта - Аусма Скуиня (18 июля 1931 — 13 августа 2015) — латвийский архитектор, одна из основательниц объединения архитекторов «Māja» («Дом»), приверженец идей «зелёной архитектуры», основанной на уважении к природе и гармонии человека с окружающей средой.

Она проектировала и реконструировала жилые здания и церкви в Лиепае, Марупе и других городах. По её проектам построена не только наша церковь, но и церковь в Айзпуте, восстановлена церковь в Вецпиебалге, а также создан проект семейного захоронения семьи Скалбе в «Саулриетос» (Вецпиебалга). 

В 1966 году Аусма Скуиня стала членом Союза архитекторов Латвии, в 1998 году была награждена Орденом Трёх звёзд IV степени, а в 1999 году удостоена пожизненной стипендии Государственного культурного фонда.

18 декабря 1998 года

Куплен фундамент, готов эскиз здания, изучена топография участка. Открыт церковный банковский счёт. Сбор средств превращается в радостное ожидание: кто-то приносит кирпичи, кто-то – продукты для строителей, кто-то – деньги. Каждый день работы напоминает: мы строим не стены, а общину.

22 августа 1999 года

 Решено: каждый член общины будет работать на строительстве 30 дней в году. Кто с утра до вечера месил цемент, кто красил стены, кто просто держал инструмент – все вместе мы становились одной командой.

2000 год

К этому времени установлен забор, проведено электричество и канализация. Разрешение на строительство получено. И хотя прогресс был медленным, каждый день приближал нас к дому, где можно собираться всей общиной.

24 января 2002 года

Крыша уложена. Впервые ощущается тепло будущего дома: теперь дождь и ветер больше не мешают собраниям, а стены начинают «дышать» жизнью.

21 апреля 2002 года

 Первое собрание в малом зале. Смех детей, молитвы, разговоры взрослых – здание начинает наполняться жизнью. Позже этот зал станет местом встреч молодежи, где рождаются новые идеи и проекты.

28 марта 2004 года

 Второй этаж готов: библиотека и два класса для воскресной школы. Земельный участок зарегистрирован официально. Начаты проекты по газификации котельной и прокладке электрокабеля. Строительство продолжается, но уже чувствуется – дом живет своей жизнью.

26 февраля 2006 года

Установлены окна и двери, стены отделаны снаружи. В руках строителей виден труд и любовь: каждый штрих, каждый метр – вклад в общее дело.

Торжественное открытие

11 лет длилась работа, но наконец здание полностью готово. На праздник приезжают гости из других городов, а многие строители приходят вспомнить свой вклад. Слезы радости, смех, воспоминания – праздник объединяет всех. Это стало подтверждением: с Божьей помощью и общинным трудом невозможное возможно.

Наши дни

Работа продолжается: перестраиваются столовая и кухня, модернизируется отопление, оборудуется ливнёвка. Здание и земля требуют заботы, как и вся жизнь общины. И это хорошо – потому что забота и труд делают дом живым, а церковь – настоящей семьёй, где каждый вносит свою лепту.