Būvniecība

Baznīca ir dzīvs organisms. Ēka ir tikai instruments, ko Dievs devis, lai draudze varētu pulcēties, mācīties, priecāties un kalpot. Taču ēkas būvniecības vēsture mūsu gadījumā ir tieši saistīta ar draudzes izveidošanos. Būvniecības vēsture nav ideāla datumos – jo vienlaikus strādāja daudzi cilvēki. Kāds atnāca ar rulli un krāsu, kāds ar padomu, kāds ar naudu. Neviens neveica stingru ieguldītā darba uzskaiti: katrs darīja to, ko varēja, un kā varēja. Bet tieši šī vienotība un gatavība kalpot padarīja neiespējamo iespējamu – mums ir sava ēka.

Hronoloģija: solis pa solim

1997. gada 8. jūlijs

Sanāksmē nolemts: laiks būvēt savu māju ticīgajiem. Iegādājamies pagraba telpu uz Priežu ielas un 8 sotkas zemesgabalu. Mācītājs Josifs Bondarenko ziedoja šim mērķim 1000 dolāru. Daudziem tas bija vairāk nekā būvniecība – tas bija pirmais solis uz sapni, kuru visi kopā loloja gadiem.

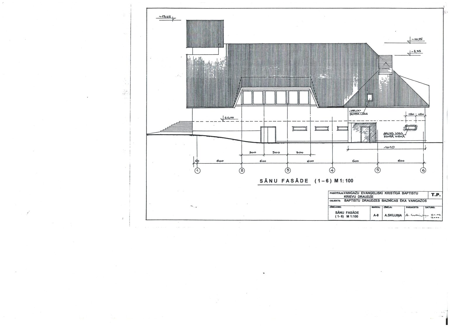
Projekta arhitekte - Ausma Skujiņa (1931. gada 18. jūlijs — 2015. gada 13. augusts) — latviešu arhitekte, viena no apvienības «Māja»  dibinātājām, «zaļās arhitektūras» ideju piekritēja, kas balstīta uz cieņu pret dabu un cilvēka harmoniju ar apkārtējo vidi. Viņa projektēja un rekonstruēja dzīvojamās ēkas un baznīcas Liepājā, Mārupē un citās pilsētās. Pēc viņas projektiem tika uzcelta ne tikai mūsu baznīca, bet arī baznīca Aizputē, atjaunota baznīca Vecpiebalgā, kā arī izveidots Skalbju ģimenes kapu projekts «Saulrietos» (Vecpiebalga). 1966. gadā Ausma Skujiņa kļuva par Latvijas Arhitektu savienības biedri, 1998. gadā tika apbalvota ar Triju Zvaigžņu ordeņa IV šķiru, bet 1999. gadā saņēma Valsts kultūrkapitāla fonda mūža stipendiju.

1998. gada 18. decembris

Iegādāts pamats, gatavs ēkas skice, izpētīta zemesgabala topogrāfija. Atvērts baznīcas bankas konts. Līdzekļu vākšana pārvēršas priecīgā gaidīšanā: kāds atnes ķieģeļus, kāds – pārtiku celtniekiem, kāds – naudu. Katru darba dienu atgādina: mēs būvējam nevis sienas, bet kopienu.

1999. gada 22. augusts

 Nolemts: katrs draudzes loceklis strādās būvniecībā 30 dienas gadā. Kāds no rīta līdz vakaram maisīja cementu, kāds krāsoja sienas, kāds vienkārši turēja instrumentu – visi kopā mēs kļuvām par vienu komandu.

2000. gads

Šajā laikā tika uzstādīts žogs, ievilkta elektrība un kanalizācija. Saņemta būvatļauja. Un lai gan progress bija lēns, katra diena mūs tuvināja mājai, kur var pulcēties visa draudze.

2002. gada 24. janvāris

Jumts ir uzlikts. Pirmo reizi jūtams draudzes mājas siltums: lietus un vējš netraucēs sapulcēm, bet sienas sāk «elpot» ar dzīvību.

2002. gada 21. aprīlis

Pirmā sapulce mazajā zālē. Bērnu smiekli, lūgšanas, pieaugušo sarunas – ēka sāk piepildīties ar dzīvību. Vēlāk šī zāle kļūs par jauniešu tikšanās vietu, kur dzimst jaunas idejas un projekti.

2004. gada 28. marts

Otrais stāvs ir gatavs: bibliotēka un divas klases svētdienas skolai. Zemes gabals ir oficiāli reģistrēts. Sākti projekti katlu mājas gazifikācijai un elektrokabeļa ierīkošanai. Celtniecība turpinās, bet jau jūtams – māja dzīvo savu dzīvi.

2006. gada 26. februāris

Tika uzstādīti logi un durvis, sienas apdarinātas no ārpuses. Celtnieku rokās redzams darbs un mīlestība: katrs trieciens, katrs metrs – ieguldījums kopīgajā darbā.

Svinīgā atklāšana

11 gadus ilga darbs, bet beidzot ēka ir pilnībā gatava. Uz svētkiem ierodas viesi no citām pilsētām, bet daudzi būvnieki nāk atcerēties savu ieguldījumu. Prieka asaras, smiekli, atmiņas – svētki vieno visus. Tas kļuva par apliecinājumu: ar Dieva palīdzību un kopīgu darbu neiespējamais kļūst iespējams.

Mūsdienas

Darbs turpinās: tiek pārbūvēta ēdnīca un virtuve, modernizēta apkure, ierīkota lietus kanalizācija. Ēkai un zemei ir nepieciešama aprūpe, tāpat kā visai kopienas dzīvei. Un tas ir labi – jo rūpes un darbs padara ēku dzīvu, bet draudzi – par īstu ģimeni, kur katrs sniedz savu ieguldījumu.